






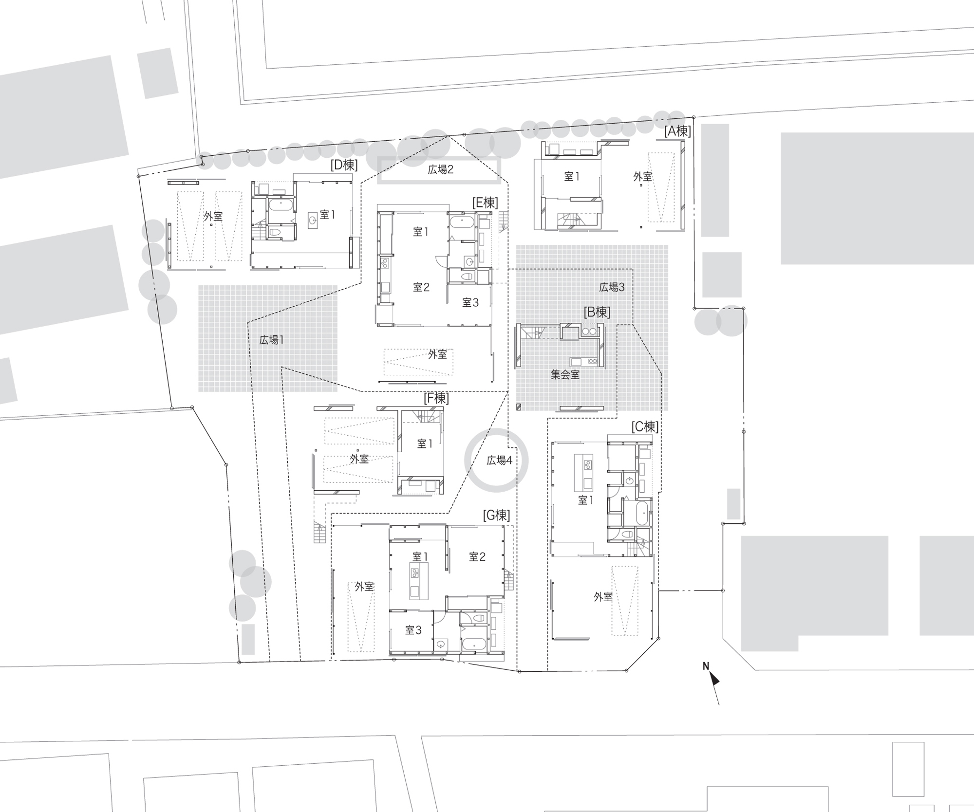
location:Tokushima city,Tokushima
principal use:6 private residences+community room
site area:1,166.96㎡
building area:347.77㎡
total floor area:677.32㎡
structural systems:wood
scale:1-3 stories
structural engineers:Lowfatstructure
landscape design:Takio Inada
structural engineers:Kameigumi
photo:Daisuke Chiba
所在地:徳島県徳島市
主要用途:専用住宅(6棟)+集会室(1棟)
敷地面積:1,166.96㎡
建築面積:347.77㎡
延床面積:677.32㎡
構造:木造
規模:地上1-3階
構造設計:ロウファットストラクチュア
ランドスケープデザイン:稲田多喜夫
施工:亀井組
写真:千葉大輔
