




location:Takaoka city,Toyama
principal use:private residence(renovation)
family type:couple
site area:589.68 m2
building area:286.68 m2
total floor area:310.16 m2
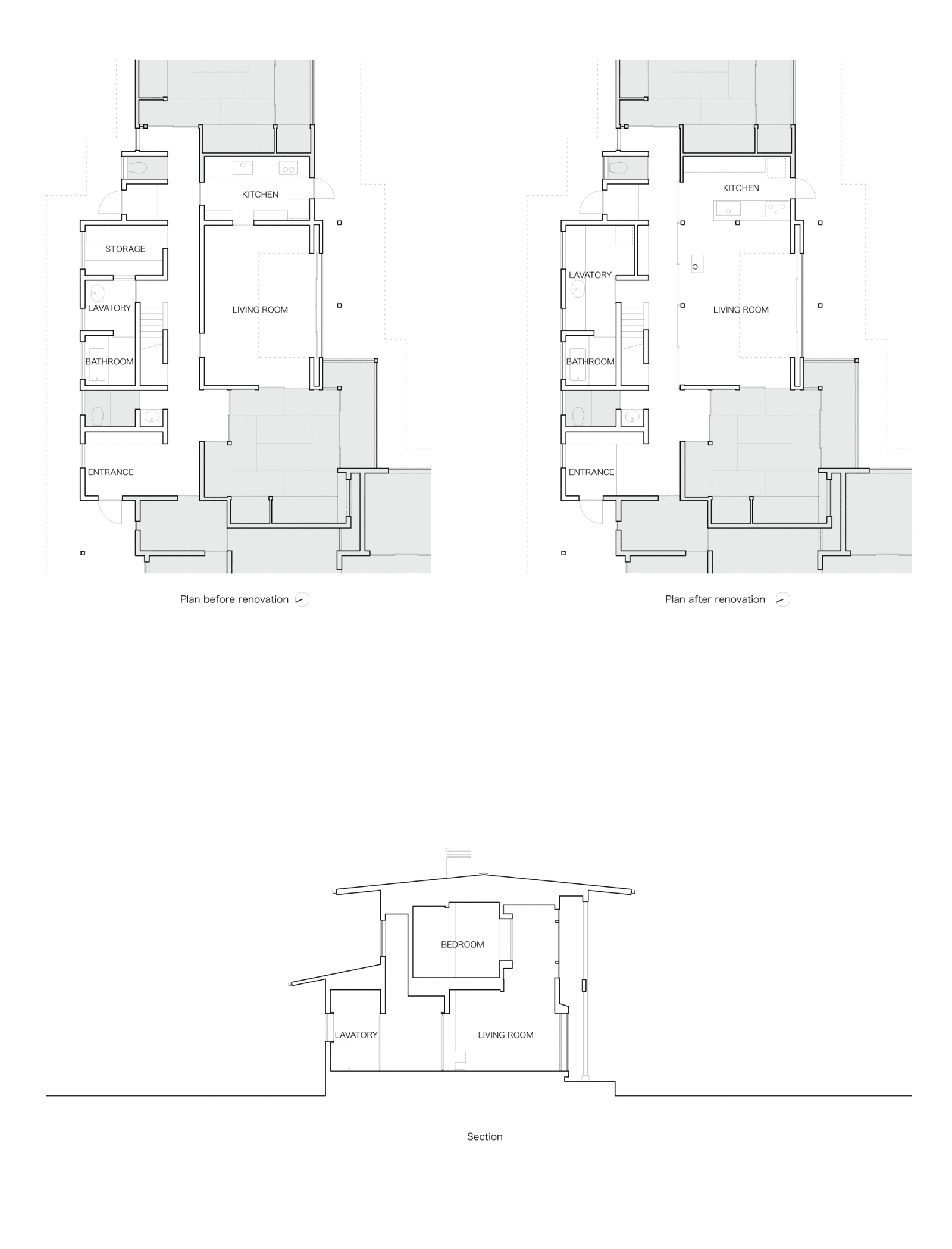
renovation area:89.0 m2
structural systems:wood
scale:2 stories
structural engineers:Design Office MOMI
general contractors:Sakaidani Kenchiku
photo:Unemori Architects
所在地:富山県高岡市
主要用途:住宅(改修)
家族構成:夫婦
敷地面積:589.68 m2
建築面積:286.68 m2
延床面積:310.16 m2
改修面積:89.0 m2
構造:木造
規模:地上2階
構造設計:樅建築事務所
施工:堺谷建築
写真:畝森泰行建築設計事務所
