Home
Works
Profile
Office
News
Instagram

畝森泰行建築設計事務所 | UNEMORI ARCHITECTS

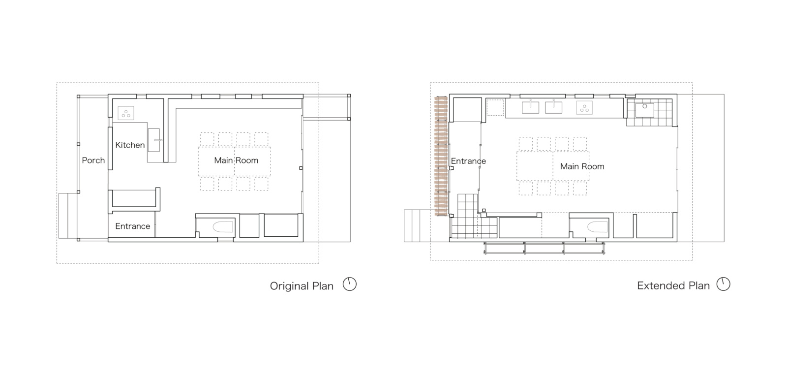
Guest House with Firewood, 2018


薪のゲストハウス


 

 

 

 

 

 

 

 

 

 

 

location:Takaoka city,Toyama

principal use:guesthouse(renovation)

site area:214.14㎡
building area:39.66㎡
total floor area:39.66㎡

extension area:6.61㎡
structural systems:wood
scale:1 story

completion:January-2018

structural engineers:Lowfatstructure

general contractors:Sakaidani Kenchiku

photo:Kai Nakamura

 

 

所在地:富山県高岡市

主要用途:ゲストハウス(改修)

敷地面積:214.14㎡

建築面積:39.66㎡

延床面積:39.66㎡

増築面積:6.61㎡

構造:木造

規模:地上1階

竣工:2018年1月

構造設計:ロウファットストラクチュア

施工:堺谷建築

写真:中村絵

 
SHARE


SHARE :
 

Copyright © UNEMORI ARCHITECTS All Rights Reserved.